Fantastic investment opportunity near Quinta do Lago - Villa - Almancil - T3

Video
IRG Top Pick
  • 3
  • 3
  • 298m2
  • 208m2
  • 825m2
Ref: 241
Sale price
1 495 000 €
  • 3
  • 3
  • 298m2
  • 208m2
  • 825m2
Ref: 241

Fantastic investment opportunity near Quinta do Lago

3-bed Algarve villa with pool, ocean views & renovation potential just 2km from the beach — ideal for investment or a holiday home.

Excellent Investment or Family Home in the Prime Location of Vilas Alvas.

This is a rare opportunity for a savvy investor or anyone seeking a beautiful family home to transform this well-located villa into something truly special.

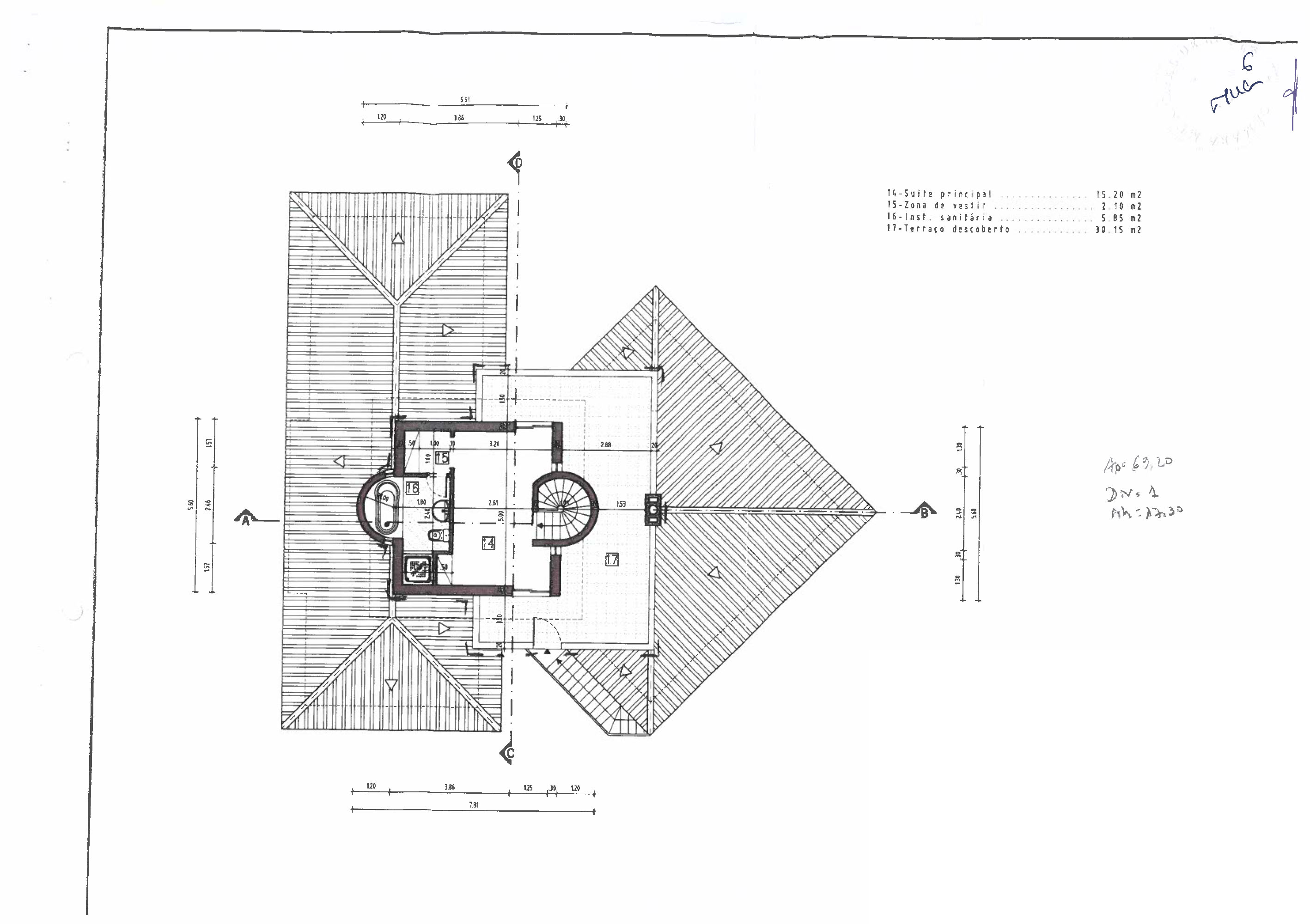
Built by the current owners, the property was thoughtfully designed with a free-flowing layout that maximises space and natural light. On the ground floor, you'll find two generously sized bedrooms — one with an en-suite bathroom, and the other conveniently located next to the full shared bathroom.

The spacious living area sits on the opposite side of the villa, benefiting from abundant natural light through large corner windows and patio doors that open directly onto the pool area. A cosy fireplace adds charm and warmth during the cooler months.

The kitchen, located just off the living room, is also spacious and offers great potential to be opened up for a more modern, open-plan living concept.

Upstairs, the master suite enjoys privacy and access to a large private terrace, offering lovely views over the surrounding area and a glimpse of the ocean, the perfect spot to relax and unwind.

Outside, the villa features a small front garden, a private driveway leading to a single garage, and a fantastic tiled pool area surrounded by traditional Portuguese calçada stone. It's a low-maintenance space ideal for sunbathing or dining al fresco.

Situated just 2km from stunning beaches and popular beachside bars and restaurants, this property offers an outstanding opportunity for a full renovation, or to modernise and use as is — all in a prime Algarve location.

Property Features

  • Air conditioning
  • Equipped kitchen
  • Fireplace
  • Fenced plot
  • Pool
  • Proximity: Beach, Golf course, Shopping, Restaurants, Schools
  • Built year: 2006
  • Floors: 2
  • Drive way
  • Storage / utility room
  • Views: Pool view, Urbanization view
  • Terrace
  • Garage
  • Closed fireplace
  • Energetic certification: C
  • Solar orientation: South, West
  • Energy Certificate

Downloads

Location